Casa semindipendente in vendita

San Possidonio, Via G. Matteotti
€ 85.000
5 locali 5 locali
151 Mq 151 Mq
2 bagni 2 bagni

Casa semindipendente in vendita

San Possidonio, Via G. Matteotti

Descrizione annuncio

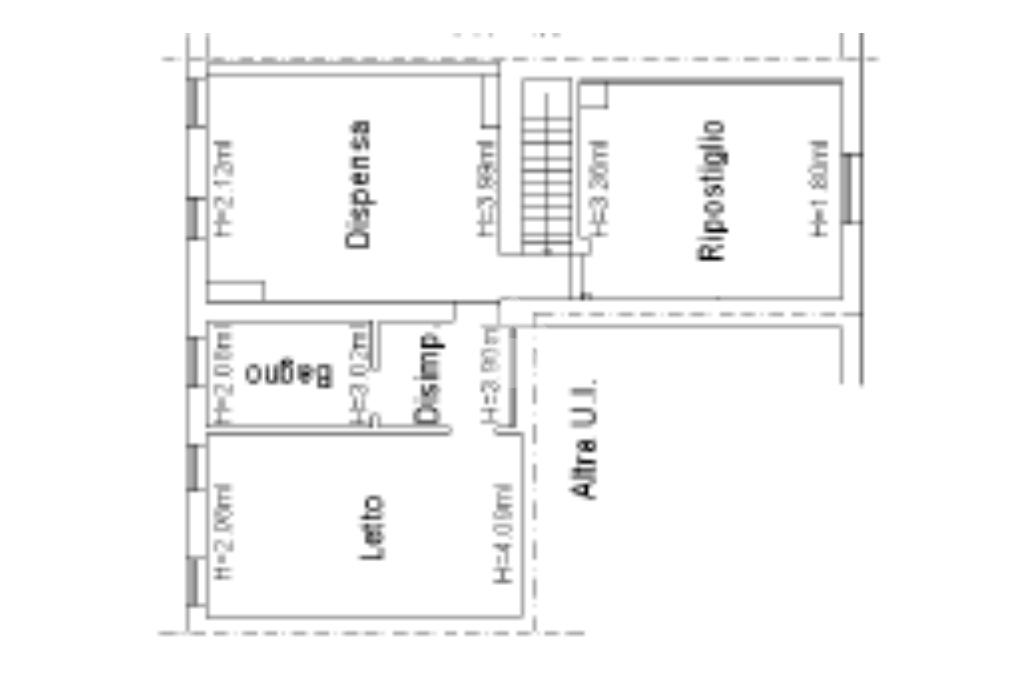
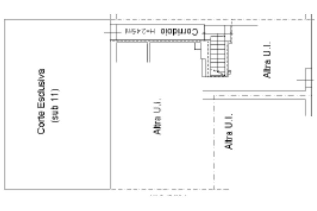
San Possidonio - proponiamo una casa semindipendente ristrutturata nel 2018 con cortile privato di 60 mq ideale per chi cerca spazio e funzionalità.

L'immobile si sviluppa su più livelli:

Al piano terra, si trova una zona comune che conduce al cortile privato.

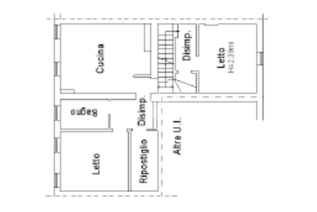
Al primo piano, l'abitazione dispone di una sala con angolo cottura, due camere matrimoniali, un bagno e un ripostiglio.

Salendo al secondo piano, si trovano un'altra sala con angolo cottura, due ulteriori camere matrimoniali e un secondo bagno.

Per tutelare la privacy dei nostri clienti, l'indirizzo del presente annuncio potrebbe non corrispondere in maniera precisa all'esatta ubicazione dell'immobile.

Desideri conoscere il valore della tua casa? Chiamaci allo 0535.652477 per una valutazione gratuita e senza impegno.

Mostra tutto

Nelle vicinanze

Scuole Scuole
Scuole
2,9 Km
Supermercati Supermercati
Supermercati
620 m
Bar Bar
Bar
1,2 Km
Ristoranti Ristoranti
Ristoranti
1,2 Km
Piccolo Borgo
2,9 Km
Mostra tutto

Caratteristiche

Rif.:
61175063
Piano:
2 di 2 (Piano su più livelli)
Camere da letto:
4
Arredamento:
Parziale
Condizionamento:
Predisposizione impianto
Ascensore:
No
Mostra tutto
Prezzo Prezzo
€ 85.000
Rata mutuo Rata mutuo
€ 397 / mese
Spese annue Spese annue
€ 0
Proponi il tuo prezzoProponi il tuo prezzo
Immobile valutato con T·Valuta

Classe Energetica

F
F
F
F
F
F
F
F
F
EP globale non rinnovabile:
174.81 kW h/m² anno
EP globale rinnovabile:
1.53 kW h/m² anno
EP invernale del fabbricato:
EP estiva del fabbricato:
Anno di costruzione:
1967
Riscaldamento:
Autonomo
Tipo impianto:
A radiatori
Tipo alimentazione:
Metano

Ti interessa visionare l'immobile?

Fissa un appuntamento  Fissa un appuntamento

Richiedi informazioni

Clicca su Leggi per aprire l'informativa
* Questi campi sono obbligatori

Calcola il tuo mutuo

Semplice e senza impegno
Anticipo

( % )
Mutuo

( % )

pochi semplici passi

inserisci i tuoi dati
Questionario completato
Grazie per aver richiesto un appuntamento senza impegno con un nostro Consulente del Credito e Assicurativo.

Hai inserito correttamente tutti i dati necessari e a breve riceverai una e-mail con un link da convalidare per inviare i tuoi dati.
Affiliato
Agenzia Mirandola Casa Srl
Galleria Del Popolo, 6 41037 Mirandola (MO)

Il nostro staff


  • Daniele Belvedere
    Affiliato

  • Fabio Benetti
    Responsabile

  • Marco Bonavita
    Collaboratore

  • Giuseppe Franco
    Collaboratore

  • Carla Mazzeo
    Coordinatrice

  • Simone Ragazzi
    Collaboratore
Galleria Del Popolo, 6 41037 Mirandola (MO)
Zona: Mirandola-Medolla-Cavezzo-S.Possidonio-Concordia-S.Felice-Poggio Rusco
Mostra su mappa
Orari: da Lunedì a Venerdì dalle 9.00 alle 13.00 e dalle 15.00 alle 19.30 Sabato dalle ore 9.00 alle 13.00
Affiliato
Agenzia Mirandola Casa Srl
Galleria Del Popolo, 6 41037 Mirandola (MO)

2026 Tecnocasa Franchising S.p.A. - P. IVA 08365160152 - Via Monte Bianco 60/A 20089 Rozzano (MI). Ogni agenzia ha un proprio titolare ed è autonoma. Privacy policy | Policy utilizzo | Cookie policy