Casa indipendente in vendita

Mirandola, Via Borghetto
€ 370.000
5 locali 5 locali
221 Mq 221 Mq
2 bagni 2 bagni

Casa indipendente in vendita

Mirandola, Via Borghetto

Descrizione annuncio

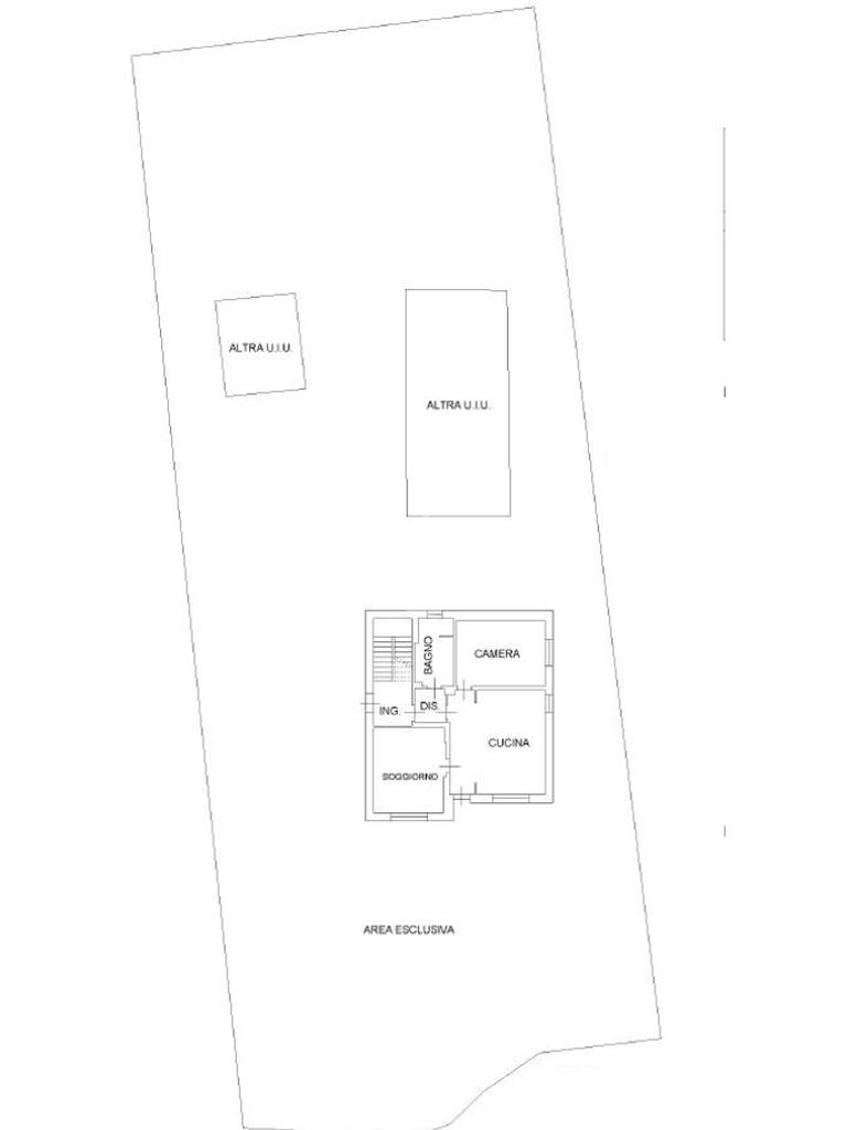
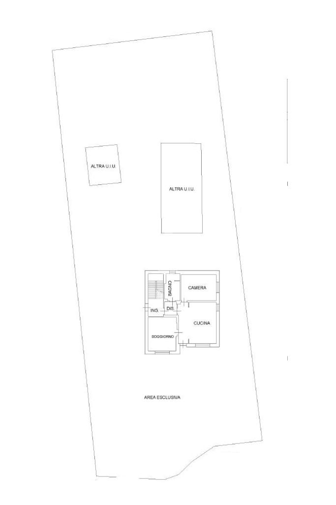
MIRANDOLA: In zona immersa nel verde e molto tranquilla proponiamo casa indipendente con giardino privato ristrutturata completamente nel 2021.

La casa, dotata di 6 kwatt di fotovoltaico e di cappotto, è suddivisa su 2 piani. Entrando nella soluzione troviamo al piano terra l'ingresso, il soggiorno, la cucina abitabile, una camera da letto matrimoniale ed il bagno.

Al primo piano troviamo 3 camere da letto matrimoniali, un disimpegno con sfogo su un balcone ed un bagno. Al piano secondo è presente una soffitta. La casa è racchiusa da 3000 mq di giardino privato e la proprietà comprende 2 depositi ed un'autorimessa.

Nella casa sono stati rifatti gli impianti elettrico ed idraulico, il tetto in legno, è stata sostituita la caldaia ed è servita dalle inferriate e dall'allarme.

Per tutelare la privacy dei nostri clienti, l'indirizzo del presente annuncio potrebbe non corrispondere in maniera precisa all'esatta ubicazione dell'immobile.

Desideri conoscere il valore della tua casa? Chiamaci allo 0535.652477 per una valutazione gratuita e senza impegno.

Mostra tutto

Nelle vicinanze

Trasporto pubblico Trasporto pubblico
Mirandola
Mirandola
830 m
Autostazione ATCM
Autostazione ATCM
2,6 Km
Ricariche auto elettriche Ricariche auto elettriche
Palazzetto dello sport di Mirandola MO
2,3 Km
Scuole Scuole
Istituto di Istruzione Superiore “Giuseppe Luosi”
2,1 Km
Istituto Superiore Statale “Galileo Galilei”
2,3 Km
Scuola Media Statale “F. Montanari”
2,4 Km
Liceo Classico "Giovanni Pico"
2,7 Km
Scuola Elementare Dante Alighieri
2,7 Km
Farmacia Farmacia
Farnacia Roventini
1,1 Km
Farmacia
2,8 Km
Farmacia
2,8 Km
Supermercati Supermercati
Conad
2,6 Km
Lidl
3,0 Km
Bar Bar
Flammery
1,1 Km
Ristoranti Ristoranti
Ristoranti
2,7 Km
La Taverna dei Pico
2,8 Km
Mostra tutto

Caratteristiche

Rif.:
61116853
Piano:
2 di 2 (Piano su più livelli)
Box:
1
Balconi:
1
Camere da letto:
4
Arredamento:
Assente
Mostra tutto
Prezzo Prezzo
€ 370.000
Rata mutuo Rata mutuo
€ 1.765 / mese
Spese annue Spese annue
€ 0
Proponi il tuo prezzoProponi il tuo prezzo

Classe Energetica

A2
A2
A2
A2
A2
A2
A2
A2
A2
EP globale non rinnovabile:
67.74 kW h/m² anno
EP globale rinnovabile:
10.50 kW h/m² anno
EP invernale del fabbricato:
EP estiva del fabbricato:
Anno di costruzione:
1967
Riscaldamento:
Autonomo
Tipo impianto:
A radiatori
Tipo alimentazione:
Metano

Ti interessa visionare l'immobile?

Fissa un appuntamento  Fissa un appuntamento

Richiedi informazioni

Clicca su Leggi per aprire l'informativa
* Questi campi sono obbligatori

Calcola il tuo mutuo

Semplice e senza impegno
Anticipo

( % )
Mutuo

( % )

pochi semplici passi

inserisci i tuoi dati
Questionario completato
Grazie per aver richiesto un appuntamento senza impegno con un nostro Consulente del Credito e Assicurativo.

Hai inserito correttamente tutti i dati necessari e a breve riceverai una e-mail con un link da convalidare per inviare i tuoi dati.
Affiliato
Agenzia Mirandola Casa Srl
Galleria Del Popolo, 6 41037 Mirandola (MO)

Il nostro staff


  • Daniele Belvedere
    Affiliato

  • Fabio Benetti
    Responsabile

  • Marco Bonavita
    Collaboratore

  • Giuseppe Franco
    Collaboratore

  • Carla Mazzeo
    Coordinatrice

  • Simone Ragazzi
    Collaboratore
Galleria Del Popolo, 6 41037 Mirandola (MO)
Zona: Mirandola-Medolla-Cavezzo-S.Possidonio-Concordia-S.Felice-Poggio Rusco
Mostra su mappa
Orari: da Lunedì a Venerdì dalle 9.00 alle 13.00 e dalle 15.00 alle 19.30 Sabato dalle ore 9.00 alle 13.00
Affiliato
Agenzia Mirandola Casa Srl
Galleria Del Popolo, 6 41037 Mirandola (MO)

2026 Tecnocasa Franchising S.p.A. - P. IVA 08365160152 - Via Monte Bianco 60/A 20089 Rozzano (MI). Ogni agenzia ha un proprio titolare ed è autonoma. Privacy policy | Policy utilizzo | Cookie policy