Casa indipendente in vendita

Concordia Sulla Secchia, Via libertà
€ 295.000
8 locali 8 locali
194 Mq 194 Mq
3 bagni 3 bagni

Casa indipendente in vendita

Concordia Sulla Secchia, Via libertà

Descrizione annuncio

CONCORDIA SULLA SECCHIA – In zona tranquilla e riservata, proponiamo casa indipendente immersa in un parco di circa 3.000 mq.

La soluzione si sviluppa su più livelli.
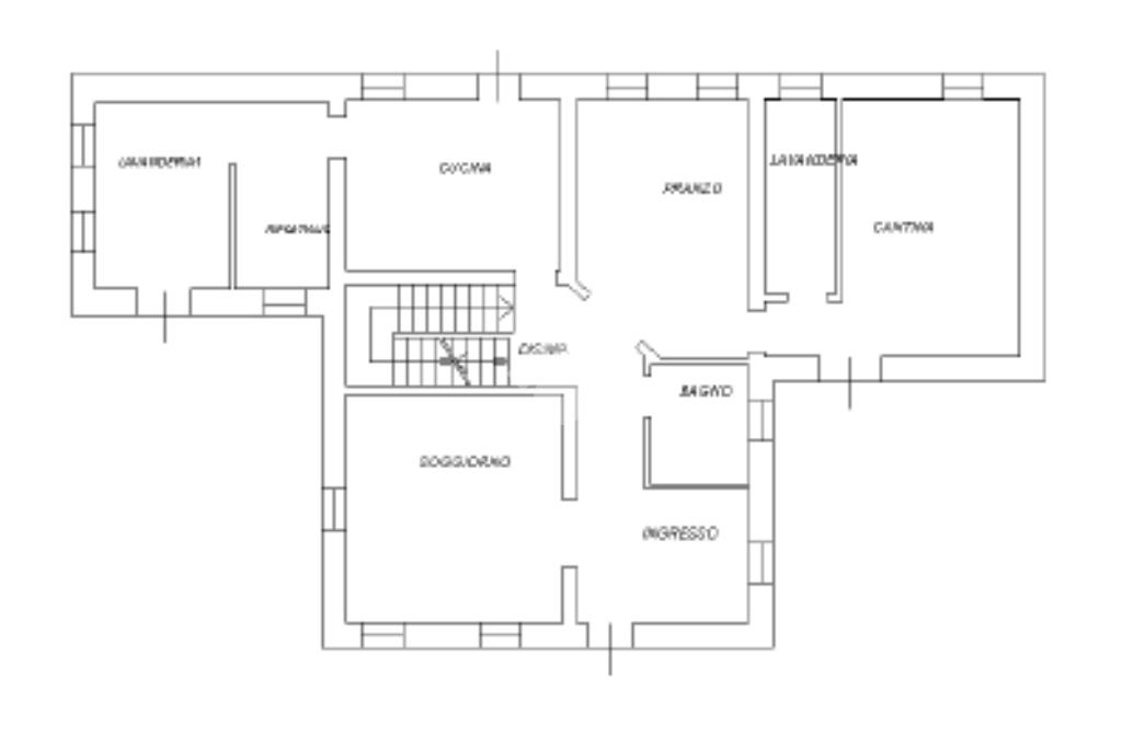
Al piano terra, l’ingresso conduce agli ambienti principali dell’abitazione, dove troviamo un soggiorno caratterizzato da camino, un bagno, una sala da pranzo con lavanderia e cantina, una cucina abitabile, un ripostiglio e un’ulteriore lavanderia, offrendo spazi funzionali e ben organizzati.

Al primo piano si sviluppa la zona notte, composta da tre camere da letto, di cui una dotata di bagno privato, oltre a un ripostiglio.

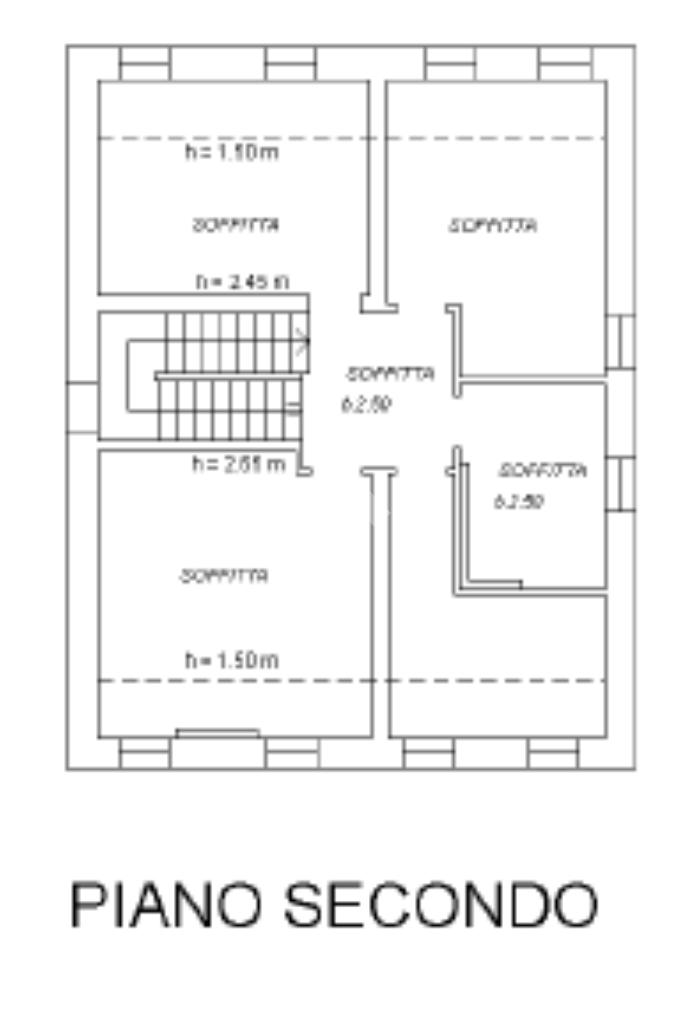
Il secondo piano ospita ulteriori tre camere matrimoniali, una piccola lavanderia e un ripostiglio, rendendo l’abitazione particolarmente adatta anche a nuclei familiari numerosi o a soluzioni abitative flessibili.

Le finiture calde e accoglienti, unite al riscaldamento a pavimento, contribuiscono a creare un ambiente confortevole e curato.
Costruita nel 2004 e oggetto di interventi di miglioramento nel 2020, la casa si distingue per le sue dotazioni moderne e per l’attenzione al risparmio energetico, grazie all’isolamento con cappotto e all’impianto fotovoltaico da 6 kW con batteria di accumulo da 10 kW.

Per tutelare la privacy dei nostri clienti, l'indirizzo del presente annuncio potrebbe non corrispondere in maniera precisa all'esatta ubicazione dell'immobile.

Desideri conoscere il valore della tua casa? Chiamaci allo 0535.652477 per una valutazione gratuita e senza impegno.

Mostra tutto

Nelle vicinanze

Supermercati Supermercati
Supermercati
2,7 Km
Conad
2,8 Km
Bar Bar
Bar
2,1 Km
Ristoranti Ristoranti
Ristoranti
2,2 Km
Piccolo Borgo
2,3 Km
Mostra tutto

Caratteristiche

Rif.:
61158115
Piano:
2 di 2 (Piano basso)
Posti auto:
1
Camere da letto:
6
Arredamento:
Assente
Condizionamento:
Autonomo
Mostra tutto
Prezzo Prezzo
€ 295.000
Rata mutuo Rata mutuo
€ 1.390 / mese
Spese annue Spese annue
€ 0
Proponi il tuo prezzoProponi il tuo prezzo

Classe Energetica

A2
A2
A2
A2
A2
A2
A2
A2
A2
EP globale non rinnovabile:
73.12 kW h/m² anno
EP globale rinnovabile:
0.03 kW h/m² anno
EP invernale del fabbricato:
EP estiva del fabbricato:
Anno di costruzione:
2004
Riscaldamento:
Centralizzato
Tipo impianto:
A radiatori
Tipo alimentazione:
Metano

Ti interessa visionare l'immobile?

Fissa un appuntamento  Fissa un appuntamento

Richiedi informazioni

Clicca su Leggi per aprire l'informativa
* Questi campi sono obbligatori

Calcola il tuo mutuo

Semplice e senza impegno
Anticipo

( % )
Mutuo

( % )

pochi semplici passi

inserisci i tuoi dati
Questionario completato
Grazie per aver richiesto un appuntamento senza impegno con un nostro Consulente del Credito e Assicurativo.

Hai inserito correttamente tutti i dati necessari e a breve riceverai una e-mail con un link da convalidare per inviare i tuoi dati.
Affiliato
Agenzia Mirandola Casa Srl
Galleria Del Popolo, 6 41037 Mirandola (MO)

Il nostro staff


  • Daniele Belvedere
    Affiliato

  • Fabio Benetti
    Responsabile

  • Marco Bonavita
    Collaboratore

  • Giuseppe Franco
    Collaboratore

  • Carla Mazzeo
    Coordinatrice

  • Simone Ragazzi
    Collaboratore
Galleria Del Popolo, 6 41037 Mirandola (MO)
Zona: Mirandola-Medolla-Cavezzo-S.Possidonio-Concordia-S.Felice-Poggio Rusco
Mostra su mappa
Orari: da Lunedì a Venerdì dalle 9.00 alle 13.00 e dalle 15.00 alle 19.30 Sabato dalle ore 9.00 alle 13.00
Affiliato
Agenzia Mirandola Casa Srl
Galleria Del Popolo, 6 41037 Mirandola (MO)

2026 Tecnocasa Franchising S.p.A. - P. IVA 08365160152 - Via Monte Bianco 60/A 20089 Rozzano (MI). Ogni agenzia ha un proprio titolare ed è autonoma. Privacy policy | Policy utilizzo | Cookie policy