Villa singola in vendita

Cavezzo, Via Ernesto Papazzoni
€ 470.000
4 locali 4 locali
262 Mq 262 Mq
2 bagni 2 bagni

Villa singola in vendita

Cavezzo, Via Ernesto Papazzoni

Descrizione annuncio

CAVEZZO: A pochi km dal centro, proponiamo esclusiva villa con finiture di pregio e limonaia.

La soluzione si sviluppa su due livelli.

Al piano terra troviamo l'ingresso, un ampio studio/cantina con porta finestra ad arco, soggiorno open space con angolo cottura di circa 61 mq, disimpegno, bagno/lavanderia e vano tecnico.

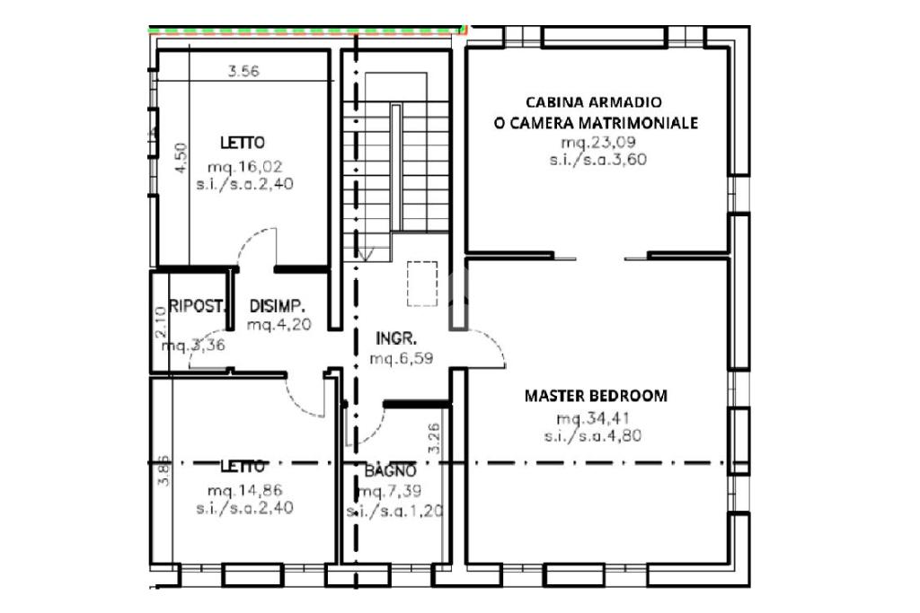
Al primo piano il disimpegno accoglie anche la predisposizione per l'ascensore, master bedroom con cabina armadio, bagno con doccia, disimpegno, ripostiglio e due ulteriori camere da letto matrimoniali.

A metà della master bedroom è possibile ricavare un ulteriore bagno.

Giardino privato di circa 1.200 mq.

Tramite la botola posta nel disimpegno al primo piano è possibile accedere alla soffitta.

La proprietà gode di un ampio giardino e di una limonaia di circa 28 mq, con ampie vetrate alla francese.

Peculiarità: la soluzione è caratterizzata da soffitti con travi a vista di dimensioni importanti dal carattere country-chic. La costruzione ha spese di mantenimento molto basse grazie a cappotto, riscaldamento con convettori di ultima generazione, pompa di calore, 8kw di fotovoltaico con 30kw di accumulo. Soluzione green e gas free.

Per tutelare la privacy dei nostri clienti, l'indirizzo del presente annuncio potrebbe non corrispondere in maniera precisa all'esatta ubicazione dell'immobile.

Desideri conoscere il valore della tua casa? Chiamaci allo 0535.652477 per una valutazione gratuita e senza impegno.

Mostra tutto

Nelle vicinanze

Ricariche auto elettriche Ricariche auto elettriche
Axpo - XService
1,0 Km
Be Charge Mobilandia
1,5 Km
Scuole Scuole
Scuole
1,2 Km
Supermercati Supermercati
Sigma
2,0 Km
Ristoranti Ristoranti
Il Galeone
2,9 Km
Mostra tutto

Caratteristiche

Rif.:
61076622
Piano:
Su più livelli di 2 con ascensore
Totale piani:
2
Posti auto:
2
Camere da letto:
4
Arredamento:
Assente
Mostra tutto
Prezzo Prezzo
€ 470.000
Rata mutuo Rata mutuo
€ 2.215 / mese
Spese annue Spese annue
€ 0
Proponi il tuo prezzoProponi il tuo prezzo

Classe Energetica

A4
A4
A4
A4
A4
A4
A4
A4
A4
EP globale non rinnovabile:
24.00 kW h/m² anno
EP globale rinnovabile:
24.00 kW h/m² anno
EP invernale del fabbricato:
EP estiva del fabbricato:
Anno di costruzione:
2025
Riscaldamento:
Autonomo
Tipo impianto:
Ad aria
Tipo alimentazione:
Pannelli

Ti interessa visionare l'immobile?

Fissa un appuntamento  Fissa un appuntamento

Richiedi informazioni

Clicca su Leggi per aprire l'informativa
* Questi campi sono obbligatori

Calcola il tuo mutuo

Semplice e senza impegno
Anticipo

( % )
Mutuo

( % )

pochi semplici passi

inserisci i tuoi dati
Questionario completato
Grazie per aver richiesto un appuntamento senza impegno con un nostro Consulente del Credito e Assicurativo.

Hai inserito correttamente tutti i dati necessari e a breve riceverai una e-mail con un link da convalidare per inviare i tuoi dati.
Affiliato
Agenzia Mirandola Casa Srl
Galleria Del Popolo, 6 41037 Mirandola (MO)

Il nostro staff


  • Daniele Belvedere
    Affiliato

  • Fabio Benetti
    Responsabile

  • Marco Bonavita
    Collaboratore

  • Giuseppe Franco
    Collaboratore

  • Carla Mazzeo
    Coordinatrice

  • Simone Ragazzi
    Collaboratore
Galleria Del Popolo, 6 41037 Mirandola (MO)
Zona: Mirandola-Medolla-Cavezzo-S.Possidonio-Concordia-S.Felice-Poggio Rusco
Mostra su mappa
Orari: da Lunedì a Venerdì dalle 9.00 alle 13.00 e dalle 15.00 alle 19.30 Sabato dalle ore 9.00 alle 13.00
Affiliato
Agenzia Mirandola Casa Srl
Galleria Del Popolo, 6 41037 Mirandola (MO)

2026 Tecnocasa Franchising S.p.A. - P. IVA 08365160152 - Via Monte Bianco 60/A 20089 Rozzano (MI). Ogni agenzia ha un proprio titolare ed è autonoma. Privacy policy | Policy utilizzo | Cookie policy